Listing Tools

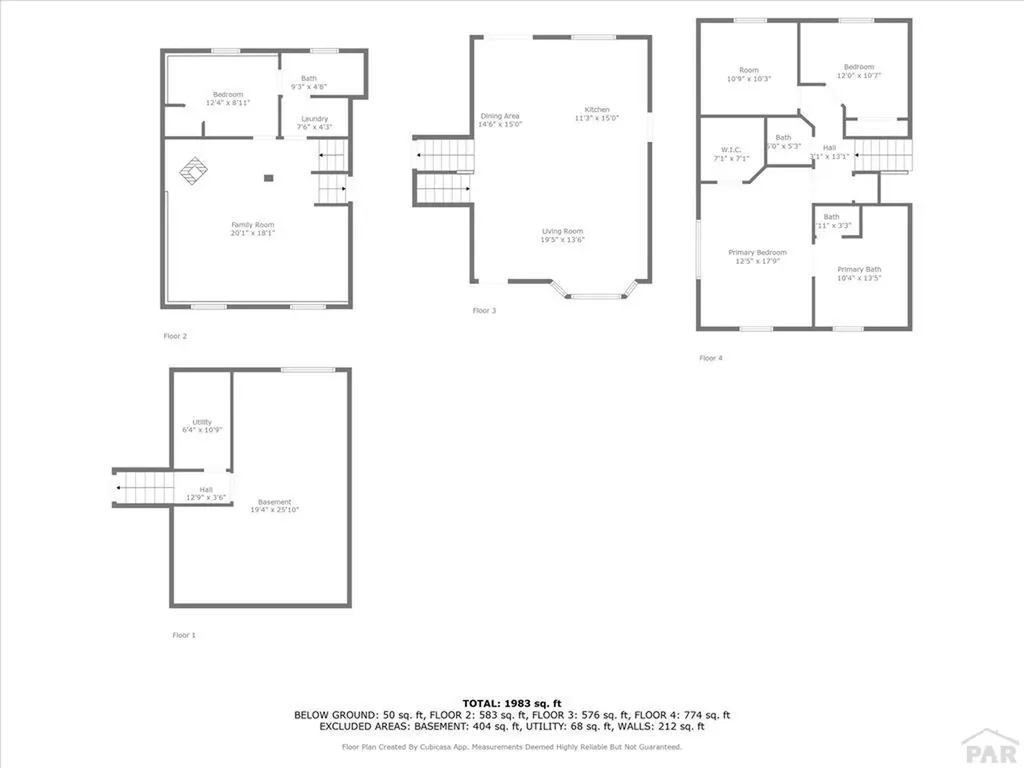
Welcome to 7015 Burnt Mill Rd, a property offering 54.81 acres with grassy fields, varied topography, and a canyon on the backside of the property where the Saint Charles River runs through. The land provides privacy and unobstructed views of Greenhorn Mountain, perfect for those seeking country living. This Tri-Level home features 4 bedrooms, 2.5 baths, and approximately 2,076 finished sq ft with an additional 404 sq ft of unfinished basement space. The main level offers an open-concept layout with vaulted ceilings, plenty of natural light, and a kitchen equipped with ample cabinetry, gas range, double oven, dishwasher, and refrigerator. Upstairs, the primary suite includes a 5-piece bath and large walk-in closet, along with two guest bedrooms and an adjacent half bath. The lower level has a spacious family room with a free-standing pellet stove, a large guest bedroom with Jack-and-Jill bath and walk-in shower, plus the laundry room. Recent updates include all new interior paint, new carpet, new doors, trim, fixtures, and a new water softener system. Additional features are central A/C, hardwired generator capability, interior/exterior surround sound wiring, and an oversized attached 2-car garage. Private road access adds to the sense of seclusion. This home combines usable acreage, comfortable living spaces, and thoughtful updates to make it move-in ready.

Property Details of 7015 Burnt Mill Road

Map Location

Listed by Melanie Magee of RE/MAX Associates (7195838383)

 "Based on information submitted to Pueblo Association of Realtors as of November 15, 2025 7:46 AM EST . All data is deemed reliable but is not guaranteed accurate by the MLS. All information should be independently reviewed and verified for accuracy. IDX information is provided exclusively for consumers’ personal, noncommercial use and may not be used for any purpose other than to identify prospective properties consumers may be interested in purchasing."

 
 

 

 

Hi there! How can we help you?

Contact us using the form below or give us a call.

Send Us A Message:

By providing Alec Brunk your contact information, you acknowledge and agree to our Privacy Policy and consent to receive marketing communications, including through automated calls, texts, and e-mails, some of which may use artificial or prerecorded voices. This consent is unnecessary for our services, and you may opt-out anytime. To opt out of texts, you can reply "stop" anytime. To opt out of e-mails, you can click on the unsubscribe link in the e-mails. Message and data rates may apply from your carriers.

Do not fill in this field:

This site is protected by reCAPTCHA and the Google Privacy Policy and Terms of Service apply.

Hi there! How can we help you?

Contact us using the form below or give us a call.

Send Us A Message:

Do not fill in this field:

This site is protected by reCAPTCHA and the Google Privacy Policy and Terms of Service apply.

Hi there! How can we help you?

Contact us using the form below or give us a call.

Send Us A Message:

Do not fill in this field:

This site is protected by reCAPTCHA and the Google Privacy Policy and Terms of Service apply.

Do not fill in this field:

This site is protected by reCAPTCHA and the Google Privacy Policy and Terms of Service apply.

Do not fill in this field:

This site is protected by reCAPTCHA and the Google Privacy Policy and Terms of Service apply.

Do not fill in this field:

This site is protected by reCAPTCHA and the Google Privacy Policy and Terms of Service apply.

$

Do not fill in this field:

This site is protected by reCAPTCHA and the Google Privacy Policy and Terms of Service apply.