Listing Tools

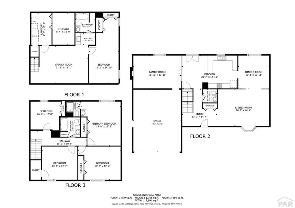
Imagine life at 1 Ironweed Dr in University Park where mornings begin with coffee on the covered porch overlooking your green front lawn and evenings wind down with family gathered around the wood burning fireplace. Including five total bedrooms throughout the house, upstairs everyone has their own space with four bedrooms including a spacious primary suite that feels like a retreat. The main level flows effortlessly for both everyday living and hosting holidays with a dining room for special meals and a bright kitchen nook for casual ones. In the basement friends come together for game nights in the billiard room with its own wet bar while guests enjoy the comfort of a private fifth bedroom. Step outside to a backyard designed for play and relaxation with kids laughing on the in ground trampoline fresh vegetables growing in the fenced garden and summer dinners under the covered patio. With a new roof and a home that has been lovingly maintained this is a place where memories are made and a lifestyle of comfort and connection awaits. Call today to schedule a private showing! Virtual Tour: https://my.matterport.com/show/?m=aLPHaVAmndu&mls=1

Property Details of 1 Ironweed Drive

Map Location

Listed by The Onyx Group of Keller Williams Performance Realty (7195831100)

 "Based on information submitted to Pueblo Association of Realtors as of November 15, 2025 6:46 AM EST . All data is deemed reliable but is not guaranteed accurate by the MLS. All information should be independently reviewed and verified for accuracy. IDX information is provided exclusively for consumers’ personal, noncommercial use and may not be used for any purpose other than to identify prospective properties consumers may be interested in purchasing."

 
 

 

 

Hi there! How can we help you?

Contact us using the form below or give us a call.

Send Us A Message:

By providing Alec Brunk your contact information, you acknowledge and agree to our Privacy Policy and consent to receive marketing communications, including through automated calls, texts, and e-mails, some of which may use artificial or prerecorded voices. This consent is unnecessary for our services, and you may opt-out anytime. To opt out of texts, you can reply "stop" anytime. To opt out of e-mails, you can click on the unsubscribe link in the e-mails. Message and data rates may apply from your carriers.

Do not fill in this field:

This site is protected by reCAPTCHA and the Google Privacy Policy and Terms of Service apply.

Hi there! How can we help you?

Contact us using the form below or give us a call.

Send Us A Message:

Do not fill in this field:

This site is protected by reCAPTCHA and the Google Privacy Policy and Terms of Service apply.

Hi there! How can we help you?

Contact us using the form below or give us a call.

Send Us A Message:

Do not fill in this field:

This site is protected by reCAPTCHA and the Google Privacy Policy and Terms of Service apply.

Do not fill in this field:

This site is protected by reCAPTCHA and the Google Privacy Policy and Terms of Service apply.

Do not fill in this field:

This site is protected by reCAPTCHA and the Google Privacy Policy and Terms of Service apply.

Do not fill in this field:

This site is protected by reCAPTCHA and the Google Privacy Policy and Terms of Service apply.

$

Do not fill in this field:

This site is protected by reCAPTCHA and the Google Privacy Policy and Terms of Service apply.